Opis
ZAPRTO STANOVANJSKO OBMOČJE V ROGOZI
SONČNA SOSESKA ROGOZA
Sončna soseska Rogoza – varno, moderno in zasebno bivanje
Vabljeni v prijetno, zeleno in urejeno stanovanjsko sosesko, zasnovano za udobje sodobnih družin. Domovi, ki združujejo kakovostno izvedbo, premišljene tlorise in odlično lokacijo.
Enota dvojček v 3. podaljšani gradbeni fazi
Objekt je pripravljen za dokončanje na ključ, pri čemer se lahko sklene izvajalska pogodba in izbere individualne materiale ter prilagoditve.
Prednosti gradnje in opreme:
- ogrevanje preko toplotne črpalke in talnega gretja za celotno hišo
- visoka energetska učinkovitost in udobje v vseh letnih časih
- vgrajena optika za hitro in stabilno internetno povezavo
- v ceni 3. gradbene faze je vključen nadstrešek za dve parkirni mesti
- v ceno je prav tako vključena vrtna lopa
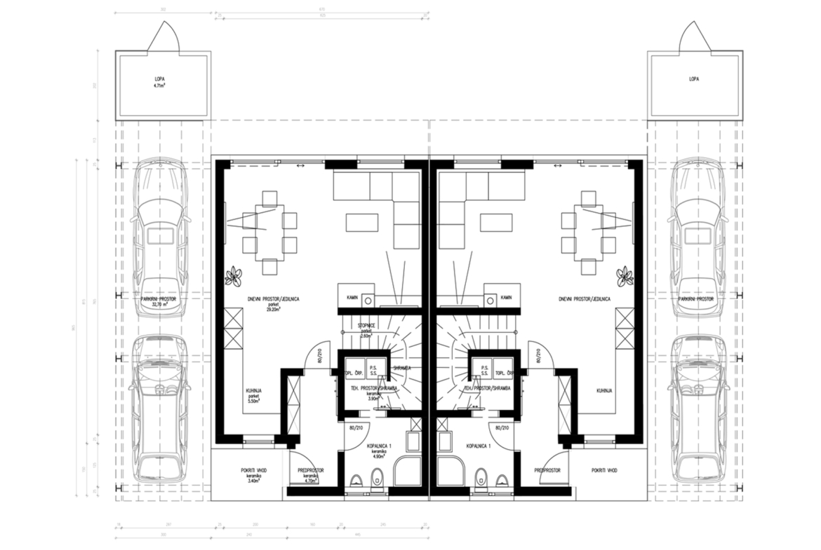
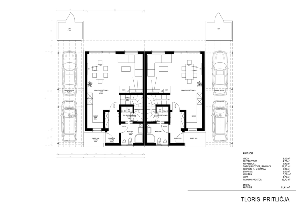
Tloris pritličja
Pritličje ustvarja svetel in odprt bivalni prostor, zasnovan za prijetno bivanje.
V pritličju se nahaja:
- prostorna vhodna avla z garderobo
- odprt dnevni prostor z veliko naravne svetlobe
- povezana jedilnica in moderna kuhinja
- kopalnica za goste
- tehnični prostor oziroma shramba
Prijetna postavitev omogoča funkcionalnost in udobje v vsakdanjem življenju.
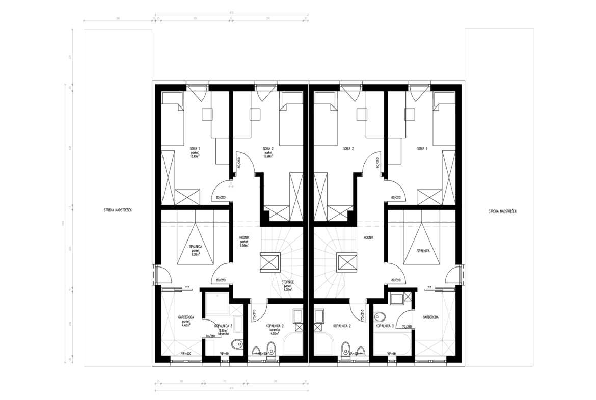
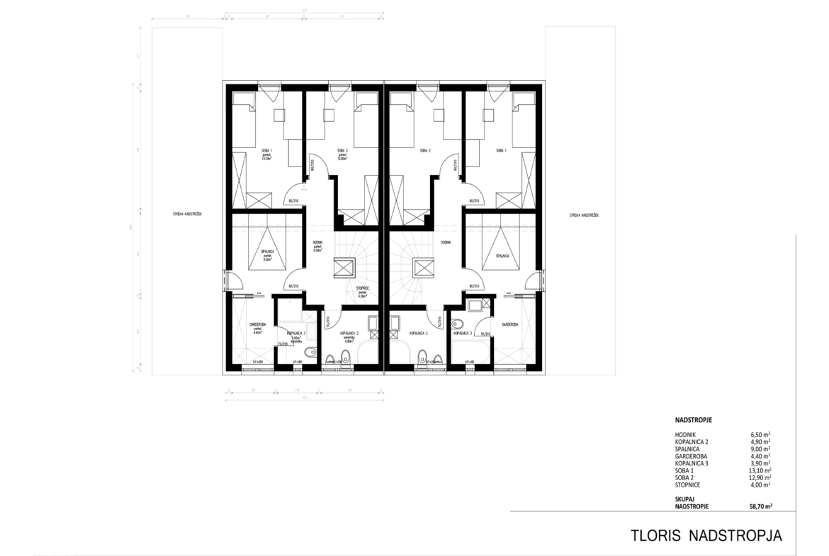
Tloris nadstropja
Nadstropje ponuja popolno zasebnost in mir, namenjeno vašemu počitku.
V nadstropju najdete:
- glavno spalnico z lastno kopalnico in garderobo
- dve dodatni spalnici, primerni za otroke ali goste
- sodobno skupno kopalnico
- velika okna z razgledom na zeleno okolico
Prostori so svetli, zračni in zasnovani za maksimalno udobje.
Lokacija
Soseska je popolna za vse, ki cenijo bližino narave. Mirno okolje, številne rekreacijske možnosti in vsa infrastruktura v neposredni bližini – le 5 km iz Maribora.
Prednosti lokacije:
- urejena dovozna cesta
- zaprto območje z varovanjem in zapornico
- le 5 km od centra Maribora
- bližina gozda in zelenih površin
- hitra povezava do avtocest in avtobusnih postaj
- trgovina oddaljena 3 km
- šola in vrtec v krogu 500 m
- v bližini športni objekti
Velikosti enot
Vse enote ponujajo 151,60 m2 bivalne površine, razlike pa so v velikosti pripadajočih parcel.
- Enota 1 – 198 m2 parcela
- Enota 2 – 189 m2 parcela
- Enota 3 – 184 m2 parcela
- Enota 4 – 285 m2 parcela – PRODANO
- Enota 5 – 165 m2 parcela
- Enota 6 – 165 m2 parcela
- Enota 7 – 168 m2 parcela
- Enota 8 – 165 m2 parcela
- Enota 9 – 164 m2 parcela
- Enota 10 – 184 m2 parcela – PRODANO
Cena
229.000€ – 3. podaljšana gradbena faza
Možnost dokončanja “na ključ” – cena 299.000€.
Nudimo pomoč pri financiranju.
Sončna soseska Rogoza – kakovosten dom v objemu mirne narave.
Za vse dodatne informacije ali ogled smo vam na voljo na info@rendera.si ali nas pokličite na 040 544 774.
Naslov
Odpri v Google Maps-
Naslov: Rogoza
-
Mesto: Rogoza
-
Poštna številka: 2204
-
Območje: Podravska
-
Država: Slovenija
Podrobnosti
Posodobljeno 26 aprila, 2026 ob 2:18 pop-
Cena 229,000€
-
Velikost 151,60 m2
-
Zemljišče 285 m2
-
Spalnice 3
-
Sobe 3
-
Kopalnice 2
-
Leto gradnje 2025
-
Tip nepremičnine Dvojček, Novogradnje
-
Status Naprodaj
Hipotekarni kalkulator
-
Polog
-
Znesek posojila
-
Mesečno plačilo hipoteke










