VEČSTANOVANJSKA STAVBA NA VIČU – POPOLNA PRENOVA 2025
- 1,590,000€
VEČSTANOVANJSKA STAVBA NA VIČU – POPOLNA PRENOVA 2025
- 1,590,000€
Opis
EKSKLUZIVNA VEČSTANOVANJSKA STAVBA NA VIČU – POPOLNOMA PRENOVLJENJA 2025
Lokacija: Ljubljana – Vič | Parcela: 574 m² | Stanovanjski del: 369,9 m² | Pomožni objekt: 209,2 m² | Skupna kvadratura: 579,1 m2 | Cena: 2.746 € / m²
POPOLNOMA PRENOVLJENA MEŠČANSKA STAVBA NA IZJEMNI LOKACIJI
Na prodaj je prestižna večstanovanjska hiša na eni izmed glavnih ulic v Ljubljani na Viču – Tržaška 75.
Stavba iz leta 1928 v celoti obnovljena 2025.
Združuje klasično meščansko arhitekturo in sodoben način bivanja z visoko energetsko učinkovitostjo.
GLAVNE PREDNOSTI
Nova streha | Nova fasada | 4-slojna okna | Nova elektrika in vodovod | Estrihi in tlaki v celoti novi
Visoki stropi | Masivne 60 cm stene | 10–15 cm toplotne izolacije | Lokalna rekuperacija | Električne žaluzije
Obnovljen hodnik in epoksi stopnišče | Vsako stanovanje ima svojo shrambo | Skupna kolesarnica v pritličju | 8 parkirnih mest za stavbo
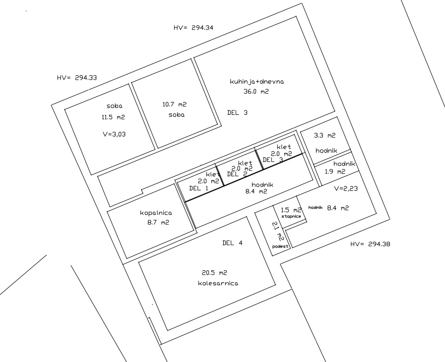
RAZPOREDITEV STAVBE
PRITLIČJE | 2,5-sobno stanovanje | 74 m²
Predsoba | Kuhinja z jedilnico | Dnevna soba | Dve sobi | Kopalnica
Visoki stropi | Odlična izolacija | Lokalna rekuperacija | Električne žaluzije
1. NADSTROPJE | 3,5-sobno stanovanje | 114 m²
Predsoba | Kuhinja z jedilnico | Dnevna soba z balkonom | Tri sobe | Shramba | Kopalnica | Ločen WC
2. NADSTROPJE | 3,5-sobno stanovanje (mansarda)
Predsoba | Kuhinja z jedilnico | Dnevna soba | Tri sobe | Shramba | Kopalnica | Ločen WC
Streha z 15 cm izolacije + steklena volna za popolno toplotno zaščito
TRENUTNO STANJE: 4. gradbena faza
POMOŽNI OBJEKT | 209 m²
Možnost ureditve treh duplex stanovanj ali poslovnih prostorov – odlična priložnost za dodatno donosnost ali investicijo – vsaka enota po cca 70 m2 (vsako nadstropje po 35 m2).
TRENUTNO STANJE: 3. gradbena faza
LOKACIJA
Ena najbolj iskana mikrolokacija v Ljubljani – Vič.
V neposredni bližini so center mesta, šole, vrtec, trgovine, banka, pošta in javni prevoz.
Kljub temu mirna in zelena okolica, idealna za družinsko bivanje ali dolgoročno investicijo.
CENA IN MOŽNOSTI
Cena: 2.746 € / m² | Možnost financiranja | Možnost menjave za vašo nepremičnino
KONTAKT
Za dodatne informacije, načrte in ogled:
E-mail: info@rendera.si | Telefon: 040 544 774
Naslov
Odpri v Google Maps-
Naslov: Tržaška, Ljubljana Vič
-
Mesto: Ljubljana Vič
-
Poštna številka: 1115
-
Območje: Ljubljana
-
Država: Slovenija
Podrobnosti
Posodobljeno 14 oktobra, 2025 ob 9:54 dop-
Cena 1,590,000€
-
Velikost 579,1 m2
-
Zemljišče 574 m2
-
Sobe 8
-
Leto gradnje 1928 (adapt. 2025)
-
Tip nepremičnine Večstanovanjska stavba
-
Status Naprodaj, Za investitorje
Hipotekarni kalkulator
-
Polog
-
Znesek posojila
-
Mesečno plačilo hipoteke






























